Un exemple de réalisation Axxens Créhabitat
Cette maison contemporaine située à La Vraie-Croix, au cœur du Morbihan, illustre parfaitement le savoir-faire d’Axxens Créhabitat, maître d’œuvre spécialiste de la conception et du suivi de projets haut de gamme. Pensée pour offrir un cadre de vie spacieux, lumineux et fonctionnel, elle combine architecture moderne, optimisation des espaces et qualité des matériaux. Ce projet représente un exemple concret de ce que nous réalisons au quotidien pour nos clients : des maisons uniques, adaptées à chaque mode de vie et construites selon des standards exigeants.
Une architecture contemporaine qui allie sobriété et élégance
L’aspect extérieur de cette construction neuve s’inscrit dans une tendance résolument contemporaine, avec :
- une toiture à deux pans en ardoises, sobre et intemporelle ;
- des lignes épurées et un enduit blanc lumineux qui contraste avec les menuiseries aluminium noires ;
- des lucarnes modernes qui dynamisent la façade et offrent un apport supplémentaire de lumière à l’étage ;
- une grande terrasse en bois, idéale pour profiter des espaces extérieurs ;
- de vastes baies vitrées coulissantes qui relient harmonieusement la pièce de vie au jardin.
L’ensemble crée une maison moderne, élégante et parfaitement intégrée à son environnement verdoyant.
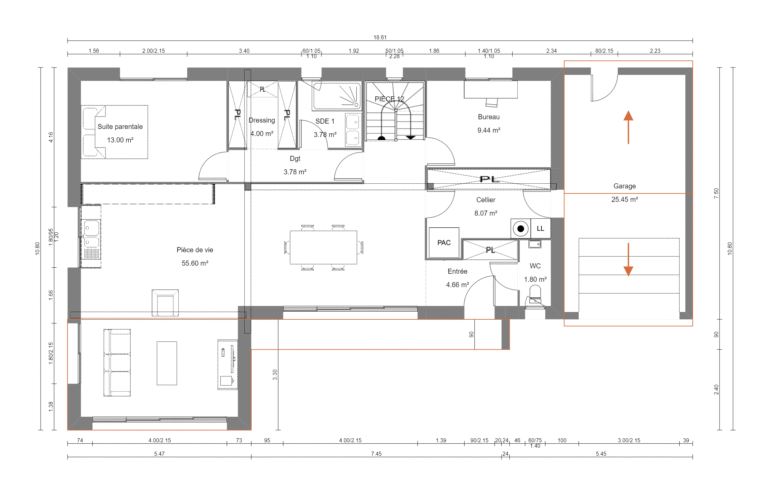
Un rez-de-chaussée pensé pour la vie de famille
Le rez-de-chaussée de 100 m² environ est organisé autour d’une pièce de vie exceptionnelle de 55 m², baignée de lumière grâce aux nombreuses baies vitrées orientées plein sud.
Cet espace accueille :
- un salon chaleureux ;
- une salle à manger familiale ;
- une cuisine ouverte avec un îlot central.
La circulation est fluide, les volumes sont généreux et les vues vers le jardin sont omniprésentes, créant une véritable continuité dedans-dehors.
Une suite parentale au calme
Toujours au rez-de-chaussée, la maison propose une suite parentale de 13 m², avec accès direct à un dressing de 4 m² et à une salle d’eau privative.
Cet espace indépendant garantit une parfaite intimité aux parents et une excellente fonctionnalité au quotidien.
Une entrée optimisée avec espaces techniques
À proximité de l’entrée, on retrouve :
- un cellier de 8 m², pratique pour le rangement et la gestion des appareils techniques (PAC, LL, etc.) ;
- un bureau de près de 10 m², idéal pour le télétravail ;
- un WC indépendant ;
- l’accès direct au garage de 25 m², permettant une circulation intérieure protégée.
Chaque mètre carré est utilisé intelligemment, conformément à la philosophie d’Axxens : créer du vrai confort de vie sans perte d’espace.
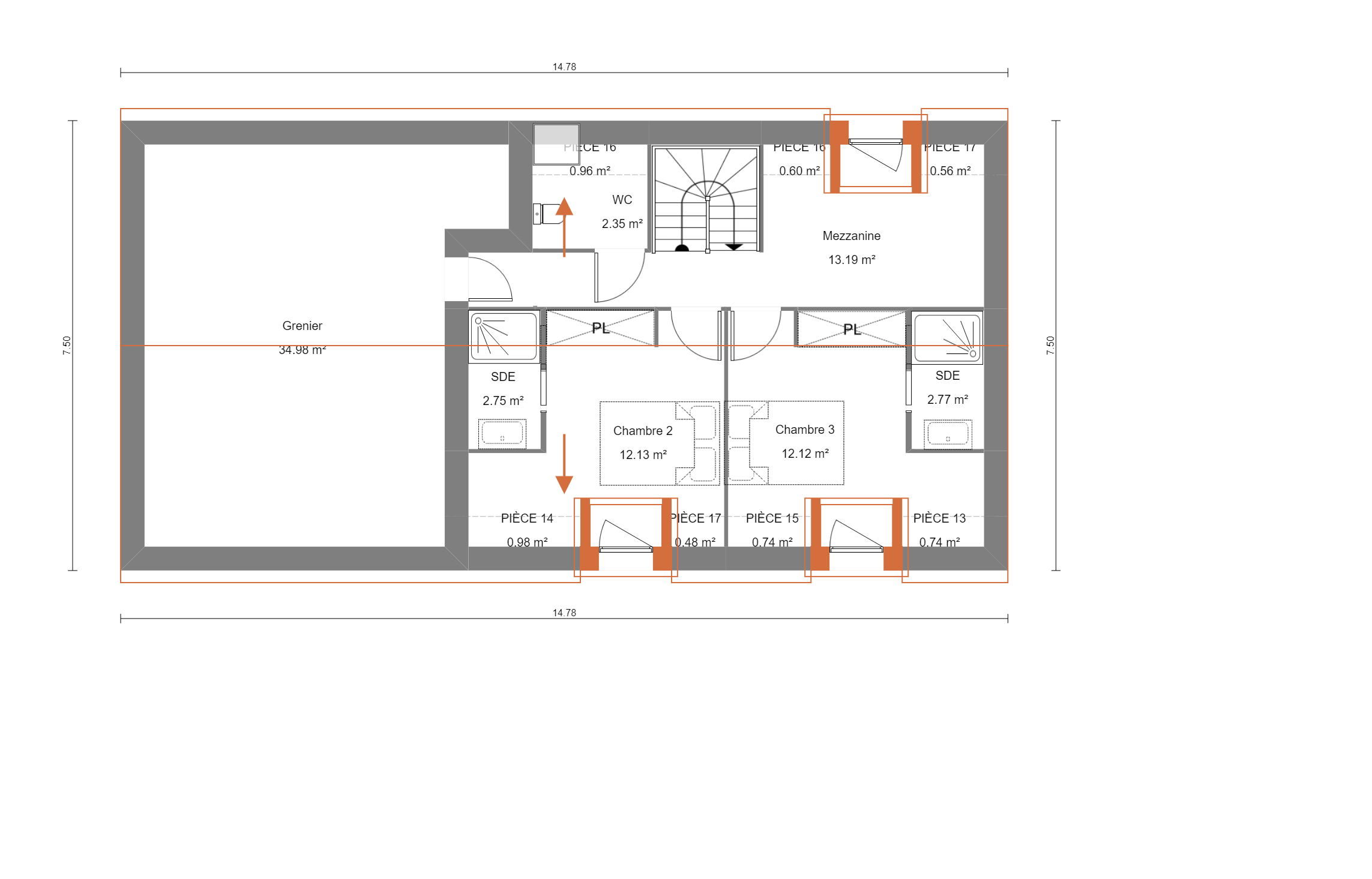
Un étage dédié aux enfants et aux invités
L’étage, accessible par un escalier central, propose :
- deux chambres de 12 m² aux belles proportions ;
- deux salles d’eau, chacune attenante à une chambre, pour éviter les conflits matinaux ;
- un WC séparé ;
- une mezzanine de 13 m², pouvant servir d’espace TV, salle de jeux ou coin lecture.
Cet étage a été pensé pour évoluer avec les besoins de la famille : enfants petits, ados, invités… chaque usage est possible.
Un grenier aménageable de 35 m²
Grande valeur ajoutée du projet : un vaste grenier de près de 35 m², exploitable pour créer dans le futur :
- une 4e chambre,
- un studio indépendant,
- une salle de sport,
- un espace détente,
- ou tout autre projet selon les envies.
Cette réserve de surface donne à la maison un potentiel évolutif très intéressant.
Des extérieurs accueillants et valorisés
La maison profite d’un terrain paysager, avec haies végétales, pelouse soignée, terrasse bois sur toute la façade sud et un espace détente accueillant du mobilier extérieur.
La terrasse se prolonge en douceur vers le jardin, permettant de multiplier les zones de vie : repas, détente, jeux des enfants…
Un large accès en enrobé et gravier relie le portail au garage, facilitant les stationnements et les manœuvres.
Un exemple du savoir-faire Axxens Créhabitat
Ce projet de maison contemporaine à La Vraie-Croix illustre :
- notre capacité à concevoir des plans 100 % personnalisés,
- notre expertise en optimisation des surfaces,
- notre exigence en termes de qualité architecturale et de finitions,
- notre volonté d’offrir des espaces agréables à vivre, pensés pour durer.
Chaque construction que nous réalisons est unique, conçue avec et pour nos clients, en tenant compte de leur mode de vie, de leur budget et de leurs envies.




